
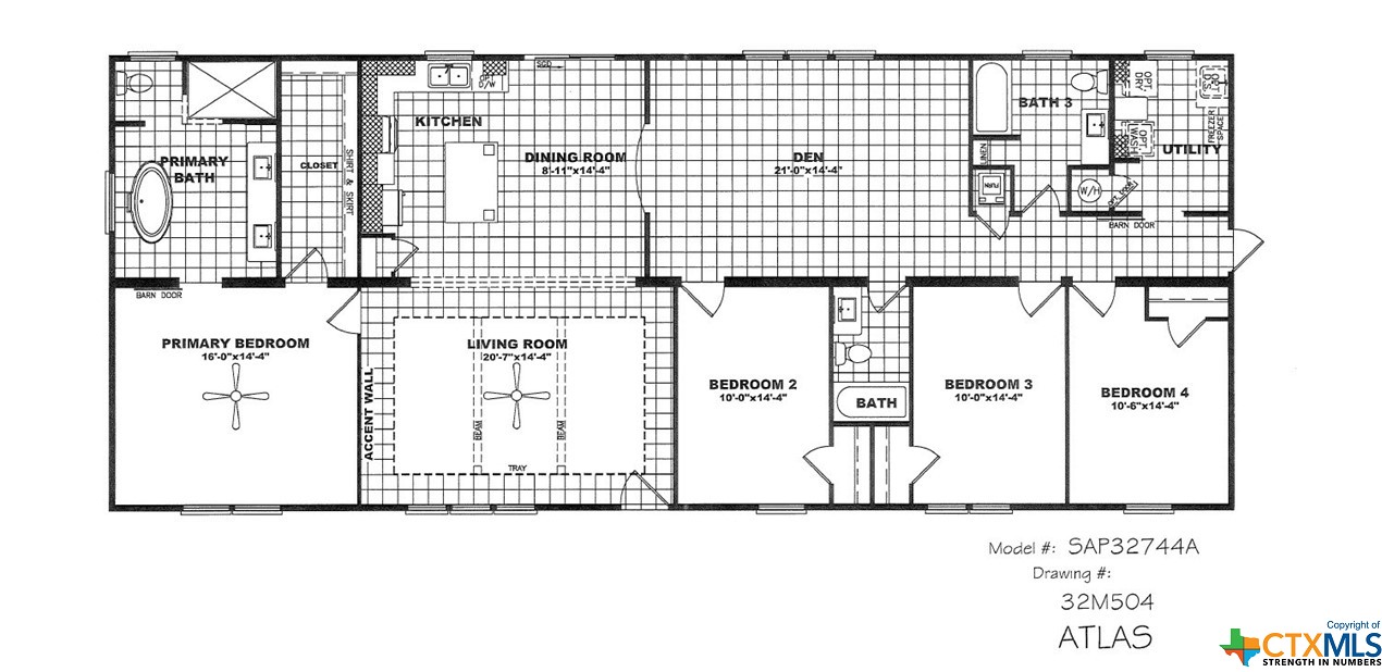
A HUNTER's Dream! Introducing unique 221-acre farm estate with a brand new, modern mobile home, agricultural versatility, and abundant recreational opportunities! Discover a truly exceptional property nestled in the embrace of nature, offering the perfect setting for peaceful living or an exceptional investment. For the farming enthusiast, the land reveals its rich potential, divided into two expansive sections. Enhancing the property's self-sufficiency and aesthetic allure are two sizable water tanks that resemble picturesque ponds, serving both for irrigation and offering recreational function. At the heart of this vast property you’ll find a contemporary modular home, just constructed in 2023. This 2200 sq ft residence boasts 4 generous bedrooms and 3 full bathrooms. The design strikes modernity and comfort, featuring top-tier finishes, an open-concept living space, and large windows that frame delightful panoramic views of the peaceful surroundings. For those who value security and seclusion, the estate is thoughtfully encircled by fencing along its perimeter. Additionally, the land boasts an extensive network of trails, ideal for horseback riding, ATVs, hiking, or leisurely strolls. These pathways present a unique opportunity to explore the varied landscapes of the property. This property offers more than just a residence; it presents a holistic, agrarian ecosystem for those seeking to embrace the rural lifestyle without compromising on contemporary comforts. Whether you're a family eager to establish your homestead, an investor with a passion for sustainable living, or an individual in pursuit of a countryside retreat, this property holds the potential to nurture your dreams and aspirations for generations to come!
| MLS # | 525034 |
|---|---|
| Listing Type | For Sale |
| Style | Manufactured Home |
| Sub-Type | Resale |
| Status | Active |
| Year | 2023 |
| Days On Site | 745 |
| Listing Provided By | eXp Realty Austin | Valerie C. Thompson |
| Bed(s) | 4 |
|---|---|
| Bath(s) | 3 Total |
| SQ Feet | 2,200 |
| Story(s) | 1 |
| Acreage | 221.00 |
| Property View | Pond |
| State | TX |
|---|---|
| County | McLennan |
| City | McGregor |
| Zip Code | 76657 |
| School District | Mcgregor ISD |
| Elementary School | McGregor Elementary School |
| High School | McGregor High School |
| State | TX |
|---|---|
| County | McLennan |
| City | McGregor |
| Zip Code | 76657 |
| School District | Mcgregor ISD |
| Elementary School | McGregor Elementary School |
| High School | McGregor High School |
![]() | $2,400,0003955 Blue Cut Rd NMcgregor, TX 76657 |
![]() | $2,400,0003955 Blue Cut RoadMcgregor, TX 76657 |
![]() | $2,400,0003955 Blue Cut Rd NMcgregor, TX 76657 |