
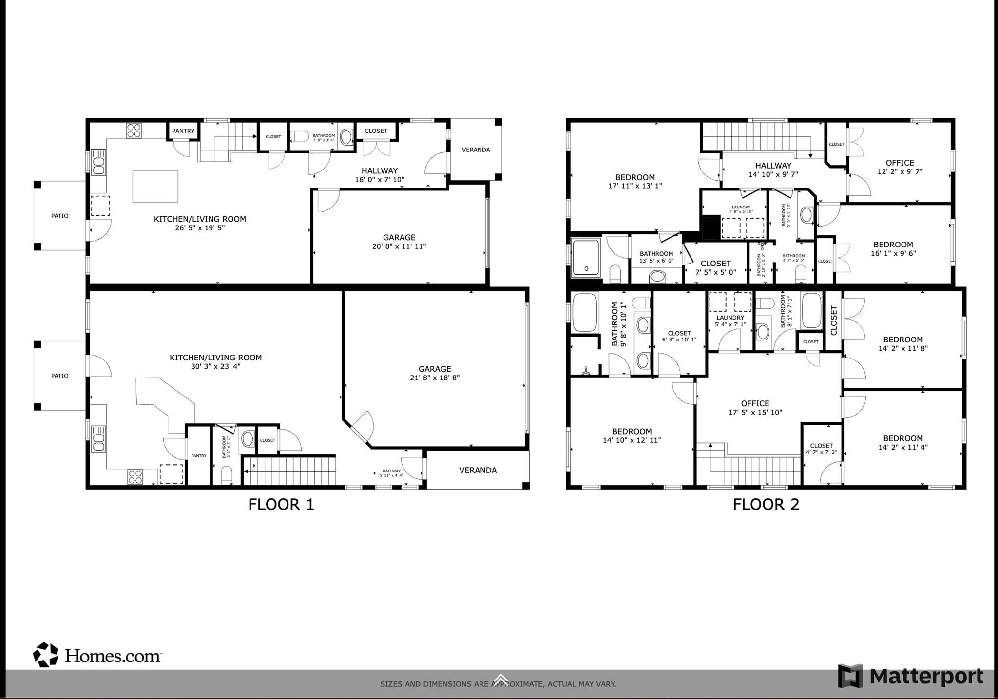
Investor Special turnkey Duplex located in 78745! Paperwork completed for each unit to be a condo. Listed $119k under TCAD value. Each unit has a privately fenced backyard with side gate access, covered back porch w/ceiling fan, Rainbird Sprinkler System, storage area under stair well, garage, garage door opener and keypad entrance. Each Unit hosts 3 beds up, 2 full baths up & laundry room up. 1 half bath down. Tile flooring throughout first floor, carpet flooring at stairs and upstairs, tile for wet areas. L LOW tax rate 1.981%. HOA w/NO HOA fee. Click on Virtual Tour for floor plans, measurements, and more info. Unit A: Kitchen w/walk-in pantry, granite breakfast bar, granite countertops and drop pendant lighting, glass tile backsplash, stainless steel appliances, gas cooktop w/oven and warming drawer, and disposal. 2 car garage. Refrigerator and W/D Convey. Tenant A has been in place since 2020. Unit B: Kitchen w/center island, granite countertops and drop pendant lighting, glass tile backsplash, stainless steel appliances, gas cooktop with oven and warming drawer, disposal, pantry and 1 car garage. Refrigerator conveys. No W/D. Tenant B has been in place since 2023. Floor plans attached in documents. Google Fiber available. Located near the Austin Waldorf School for K-12. Both Units Leased for a total monthly income of $5,475.00 Pet and Lease Deposits convey at Sale.
| MLS # | 9093736 |
|---|---|
| Listing Type | For Sale |
| Sub-Type | Resale |
| Status | Active |
| Year | 2018 |
| Days On Site | 138 |
| Listing Provided By | eXp Realty, LLC | Mia Sanchez |
| SQ Feet | 3,575 |
|---|---|
| Garage | 3 |
| Story(s) | 2 |
| Acreage | 0.15 |
| Water Front | Yes |
| Property View | None |
| Interior Features | Breakfast Bar, Ceiling Fan(s), Granite Counters, Double Vanity, Entrance Foyer, High Speed Internet, Interior Steps, Kitchen Island, Pantry, Recessed Lighting, Walk-In Closet(s) |
|---|---|
| Cooling | Ceiling Fan(s), Central Air, Electric, Multi Units, Separate Meters |
| Heating | Central, Forced Air, Natural Gas, Separate Meters, Varies by Unit |
| Appliances | Dishwasher, Disposal, Exhaust Fan, Gas Cooktop, Gas Range, Microwave, Oven, Gas Oven, Plumbed For Ice Maker, RNGHD, Free-Standing Refrigerator, Self Cleaning Oven, Stainless Steel Appliance(s), Vented Exhaust Fan, Washer/Dryer |
| Fireplaces Total | 0 |
| Window Features | Blinds, Insulated Windows, Low-Emissivity Windows, Screens, Vinyl Windows |
| Flooring | Carpet, Tile |
| Exterior Features | Gutters Full, Private Yard |
|---|---|
| Roof | Composition |
| Foundation Details | Slab |
| Lot Features | Back Yard, Cul-De-Sac, Front Yard, Interior Lot, Level, Private, Public Maintained Road, Sprinkler - Automatic, Subdivided |
| Patio And Porch Features | Covered, Front Porch, Rear Porch |
| Fencing | Back Yard, Fenced, Gate, Perimeter, Wood |
| Construction Materials | Brick, Concrete, Frame, Glass, Hardi Plank Type, ICAT Recessed Lighting, Blown-In Insulation, Masonry – Partial, Radiant Barrier, Vertical Siding, Vinyl Siding, Stone |
| Security Features | Carbon Monoxide Detector(s), Secured Garage/Parking, Smoke Detector(s) |
| Parking Features | Attached, Deeded, Direct Access, Driveway, Garage, Garage Door Opener, Garage Faces Front, Inside Entrance, Kitchen Level, Private, Side By Side, Varies by Unit |
|---|---|
| Garage Spaces | 3 |
| Utilities | Above Ground, Cable Available, Electricity Connected, High Speed Internet, Natural Gas Connected, Sewer Connected, Underground Utilities, Water Connected |
|---|---|
| Sewer | Public Sewer |
| List Aor | Austin Board Of Realtors |
|---|
| Property | 22180 |
|---|
| State | TX |
|---|---|
| County | Travis |
| City | Austin |
| Zip Code | 78745 |
| Area | 10S |
| Community Name | Kincheon |
| School District | Austin ISD |
| Elementary School | Boone |
| High School | Crockett |
| State | TX |
|---|---|
| County | Travis |
| City | Austin |
| Zip Code | 78745 |
| Area | 10S |
| Community Name | Kincheon |
| School District | Austin ISD |
| Elementary School | Boone |
| High School | Crockett |